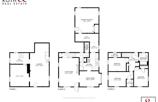
This CHARMING and UPDATED home offers over 1800 sqft of living space and sits on almost half an acre. Step inside and you’ll immediately fall in love with the character this home offers, from the arched entryways to the cozy brick fireplace. First floor primary offering flexible use as in-law space or home office. Recent renovations include a beautifully remodeled kitchen with new appliances, new flooring, carpet, fresh paint, ceiling fans and updated lighting throughout. Outside, enjoy a large fenced backyard that provides both privacy and space to entertain. All that's left to do is move in!